ルイシャトレ門前仲町 7階3方向角住戸 江東区冬木[マンション]

ルイシャトレ門前仲町 7階3方向角住戸 江東区冬木[マンション]

マンション[江東区冬木]

両国、錦糸町、森下のマンション購入、売却は専門店のコムズへ

  • 03-3632-0455
  • 9~19時/水曜店休

物件詳細

ルイシャトレ門前仲町 7階3方向角住戸 江東区冬木[マンション]

 

ルイシャトレ門前仲町 7階3方向角住戸 江東区冬木[マンション]の物件詳細ページです。

物件種別: マンション

お問い合わせ番号:88376367832

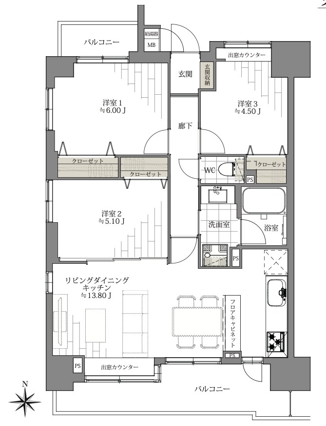
間取り(面積)

3LDK

( 64.8㎡(壁芯))

価格(円)

1億1980万円

交通: 都営大江戸線 門前仲町駅 徒歩8分

専有・建物: 約19.6坪

管理費/修繕積立金:11,940円/月/11,960円/月

築年月:2000年8月

ポイント

7階3方向角住戸、専有面積64.80㎡、ペット可、リノベーション、2000年8月築、陽当たり通風良好です。

イベント

現地案内会
ご内見予約を承ります。 お手数ですが当社03-3632-0455までご連絡ください。

問い合わせ(無料)

TEL: 03-3632-0455

お問い合わせ番号: 88376367832

QRコード

資料請求などはこちら

問い合わせ(無料)

TEL: 03-3632-0455

お問い合わせ番号: 88376367832

セールスポイント

特徴等

ペット(可) 事務所(不可) 

リフォーム:クロス、フローリング、キッチン、風呂、洗面台、トイレ等(内装リフォーム終了予定日:2026年7月) 

設備等

ウォークインクローゼット BS システムキッチン コンロ口数:3口 浄水器 バス・トイレ別 追い焚き風呂 角住戸 TVインターホン 火災報知機 

ガス:都市ガス 水道:公営 下水:公共下水 外壁:タイル 宅配ボックス エレベーター 

部屋外設備 バルコニー:13.02㎡ 
駐車場 要問合せ 
駐輪場 有り 400円 バイク置き場 有り 1,500円
小学校 江東区立数矢小学校 408m  中学校 江東区立深川第二中学校 348m 
近隣施設

スーパー:まいばすけっと深川2丁目  246m

スーパー:アブアブ赤札堂深川店  601m

スーパー:オーケー 平野店  539m

スーパー:食品館あおば深川店  532m

スーパー:Ozeki 門仲牡丹店  1006m

スーパー:成城石井 深川ギャザリア店  1239m

コンビ二:ファミリーマート 江東冬木店  143m

コンビ二:セブンイレブン 江東深川2丁目店  320m

物件概要

物件名 ルイシャトレ門前仲町 7階3方向角住戸
物件所在地 東京都江東区冬木15-9
交通機関 都営大江戸線 門前仲町駅 徒歩8分
東京メトロ東西線 門前仲町駅 徒歩11分
敷地の権利形態 所有権
総戸数 46戸
建物構造 鉄筋コンクリート 築年月 2000年8月
面積(専有・建物) 64.8㎡(壁芯)
窓の向き バルコニー 南:13.02㎡
建物階数 地上10階建  所在階 7階
施工会社 株式会社さとうベネック
管理

管理人形態:日勤 管理形態:全部委託 管理組合:有

管理会社:株式会社長谷工コミュニティ

都市計画 市街化区域 用途地域 準工業地域
現況 空き 引渡時期 相談
条件等 代金お支払い後ご入居可能です。
特定事項等 住宅ローン(変動金利)利用可
住宅ローン控除対象

その他

取引態様 媒介(仲介) 自社管理番号 88376367832
情報更新日 2026年4月27日 次回更新予定日 2026年5月27日
不動産会社コード 2101997 物件管理コード 2129504511560000001390
  • ※価格は物件の代金総額を表示しており、消費税が課税される場合は税込と表記の上、税込価格で表示しております。
  • ※間取りの「S」はサービスルーム(納戸)です。
  • ※現況と異なる場合には現況を優先します。
  • ※QRコードは(株)デンソーウェーブの登録商標です。
  • ※利回りとは、当該不動産の1年間の予定賃料収入の不動産取得対価に対する割合であり、
  •    公租公課その他当該物件を維持するために必要な費用の控除前のものです。
  •    また、予定賃料収入が確実に得られることを保証するものではありません。

資料請求などはこちら

問い合わせ(無料)

TEL: 03-3632-0455

お問い合わせ番号: 88376367832

お問い合わせ先:株式会社コムズ 本店

所在地 : 東京都墨田区両国4丁目37-13
TEL : 03-3632-0455
免許番号 : 東京都知事(4)第90683号
加盟団体 : 全国宅地建物取引業協会

この部屋を見学予約

ホームへ戻る