泰地マンション 7階L字バルコニー 墨田区千歳[マンション]

泰地マンション 7階L字バルコニー 墨田区千歳[マンション]

マンション[墨田区千歳]

両国、錦糸町、森下のマンション購入、売却は専門店のコムズへ

  • 03-3632-0455
  • 9~19時/水曜店休

物件詳細

泰地マンション 7階L字バルコニー 墨田区千歳[マンション]

泰地マンション 7階L字バルコニー 墨田区千歳[マンション]の物件詳細ページです。

物件種別: マンション

お問い合わせ番号:89399372

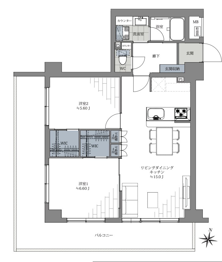
間取り(面積)

2LDK

( 61.63㎡(壁芯))

価格(円)

7499万円

交通: 都営大江戸線 森下(東京)駅 徒歩3分

専有・建物: 約18.64坪

管理費/修繕積立金:17,260円/月/20,650円/月

築年月:1986年3月

ポイント

7階L字バルコニー、南西角住戸、1986年3月築、リノベーション、専有面積61.63㎡です。

イベント

現地案内会
ご内見予約を承ります。 お手数ですが当社03-3632-0455までご連絡ください。

問い合わせ(無料)

TEL: 03-3632-0455

お問い合わせ番号: 89399372

QRコード

資料請求などはこちら

問い合わせ(無料)

TEL: 03-3632-0455

お問い合わせ番号: 89399372

セールスポイント

特徴等

ペット(不可) 事務所(不可) 

リフォーム:クロス、フローリング、キッチン、風呂、建具、洗面台、トイレ等 

設備等

BS システムキッチン コンロ口数:3口 浄水器 バス・トイレ別 角住戸 ガス給湯 TVインターホン 火災報知機 

ガス:都市ガス 水道:公営 下水:公共下水 外壁:タイル オートロック エレベーター 

部屋外設備 バルコニー:22.95㎡ 
駐車場 無 
駐輪場 有り 100円 バイク置き場 有り 500円
小学校 墨田区立両国小学校 479m  中学校 墨田区立両国中学校 1001m 
近隣施設

スーパー:ローソンストア100 LS両国店  481m

スーパー:まいばすけっと 新大橋1丁目店  486m

スーパー:Olympic森下店  579m

スーパー:マルエツ プチ 両国緑一丁目店  676m

スーパー:ライフ菊川店  567m

スーパー:マルエツ 菊川店  1230m

コンビ二:ローソン H墨田千歳三丁目店  170m

コンビ二:セブンイレブン 墨田千歳店  306m

物件概要

物件名 泰地マンション 7階L字バルコニー
物件所在地 東京都墨田区千歳3丁目8-13
交通機関 都営大江戸線 森下(東京)駅 徒歩3分
都営新宿線 森下(東京)駅 徒歩3分
中央・総武線各停 両国駅 徒歩9分
敷地の権利形態 所有権
総戸数 31戸
建物構造 鉄骨鉄筋コンクリート 築年月 1986年3月
面積(専有・建物) 61.63㎡(壁芯)
窓の向き バルコニー 南:22.95㎡
建物階数 地上9階建  所在階 7階
施工会社 株式会社浅川組
管理

管理人形態:日勤 管理形態:全部委託 管理組合:有

管理会社:株式会社東急コミュニティー

その他費用 町内会費:200円/月 組合費:1,200円/月
都市計画 市街化区域 用途地域 準工業地域
現況 空き 引渡時期 相談
条件等 代金お支払い後ご入居可能です。
特定事項等 住宅ローン(変動金利)利用可
住宅ローン控除対象

その他

取引態様 媒介(仲介) 自社管理番号 89399372
情報更新日 2026年5月31日 次回更新予定日 2026年6月30日
不動産会社コード 2101997 物件管理コード 2129504511560000001362
  • ※価格は物件の代金総額を表示しており、消費税が課税される場合は税込と表記の上、税込価格で表示しております。
  • ※間取りの「S」はサービスルーム(納戸)です。
  • ※現況と異なる場合には現況を優先します。
  • ※QRコードは(株)デンソーウェーブの登録商標です。
  • ※利回りとは、当該不動産の1年間の予定賃料収入の不動産取得対価に対する割合であり、
  •    公租公課その他当該物件を維持するために必要な費用の控除前のものです。
  •    また、予定賃料収入が確実に得られることを保証するものではありません。

資料請求などはこちら

問い合わせ(無料)

TEL: 03-3632-0455

お問い合わせ番号: 89399372

お問い合わせ先:株式会社コムズ 本店

所在地 : 東京都墨田区両国4丁目37-13
TEL : 03-3632-0455
免許番号 : 東京都知事(4)第90683号
加盟団体 : 全国宅地建物取引業協会

この部屋を見学予約

ホームへ戻る