コンポーゼ亀戸 最上階ルーフバルコニー付き 江東区亀戸[マンション]

コンポーゼ亀戸 最上階ルーフバルコニー付き 江東区亀戸[マンション]

マンション[江東区亀戸]

両国、錦糸町、森下のマンション購入、売却は専門店のコムズへ

  • 03-3632-0455
  • 9~19時/水曜店休

物件詳細

コンポーゼ亀戸 最上階ルーフバルコニー付き 江東区亀戸[マンション]

 

コンポーゼ亀戸 最上階ルーフバルコニー付き 江東区亀戸[マンション]の物件詳細ページです。

物件種別: マンション

お問い合わせ番号:8376632783

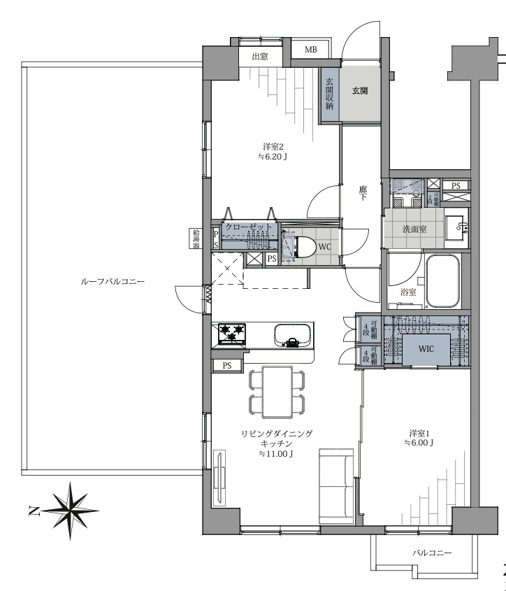
間取り(面積)

2LDK

( 56.8㎡(壁芯))

価格(円)

8499万円

交通: 中央・総武線各停 亀戸駅 徒歩8分

専有・建物: 約17.18坪

管理費/修繕積立金:13,160円/月/11,300円/月

築年月:2000年2月

ポイント

最上階角部屋、ルーフバルコニー付き、専有面積56.80㎡、リノベーション、2000年2月築、陽当たり通風良好です。

イベント

現地案内会
ご内見予約を承ります。 お手数ですが当社03-3632-0455までご連絡ください。

問い合わせ(無料)

TEL: 03-3632-0455

お問い合わせ番号: 8376632783

QRコード

資料請求などはこちら

問い合わせ(無料)

TEL: 03-3632-0455

お問い合わせ番号: 8376632783

セールスポイント

特徴等

ペット(不可) 事務所(不可) 

リフォーム:クロス、フローリング、キッチン、風呂、洗面台、トイレ等 

設備等

ウォークインクローゼット BS 対面式キッチン 浄水器 バス・トイレ別 トイレ有 角住戸 最上階 TVインターホン 火災報知機 

ガス:都市ガス 水道:公営 下水:公共下水 外壁:タイル モニタ付オートロック エレベーター 

部屋外設備 バルコニー:2.46㎡ ルーフバルコニー:33㎡ 
駐車場 要問合せ 
駐輪場 有り 200円 バイク置き場
小学校 江東区立第二亀戸小学校 309m  中学校 江東区立亀戸中学校 1017m 
近隣施設

スーパー:まいばすけっと亀戸駅東口  320m

スーパー:パントリーカメイドクロック店  282m

スーパー:ライフカメイドクロック店  269m

スーパー:リコス亀戸7丁目店  600m

スーパー:肉のハナマサ亀戸店  966m

スーパー:オーケー 亀戸店  1005m

コンビ二:ファミリーマート 亀戸六丁目店  176m

コンビ二:セブンイレブン 亀戸昭和橋通り店  183m

物件概要

物件名 コンポーゼ亀戸 最上階ルーフバルコニー付き
物件所在地 東京都江東区亀戸6丁目53-12
交通機関 中央・総武線各停 亀戸駅 徒歩8分
都営新宿線 大島(東京)駅 徒歩12分
敷地の権利形態 所有権
総戸数 29戸
建物構造 鉄筋コンクリート 築年月 2000年2月
面積(専有・建物) 56.8㎡(壁芯)
窓の向き バルコニー 西:2.46㎡ 北:33㎡
建物階数 地上7階建  所在階 7階
施工会社 株式会社間組
管理

管理人形態:日勤 管理形態:全部委託 管理組合:有

管理会社:株式会社長谷工コミュニティ

都市計画 市街化区域 用途地域 準工業地域
現況 空き 引渡時期 即時
条件等 代金お支払い後ご入居可能です。
特定事項等 住宅ローン(変動金利、フラット35)利用可
住宅ローン控除対象

その他

取引態様 媒介(仲介) 自社管理番号 8376632783
情報更新日 2026年4月3日 次回更新予定日 2026年5月3日
不動産会社コード 2101997 物件管理コード 2129504511560000001381
  • ※価格は物件の代金総額を表示しており、消費税が課税される場合は税込と表記の上、税込価格で表示しております。
  • ※間取りの「S」はサービスルーム(納戸)です。
  • ※現況と異なる場合には現況を優先します。
  • ※QRコードは(株)デンソーウェーブの登録商標です。
  • ※利回りとは、当該不動産の1年間の予定賃料収入の不動産取得対価に対する割合であり、
  •    公租公課その他当該物件を維持するために必要な費用の控除前のものです。
  •    また、予定賃料収入が確実に得られることを保証するものではありません。

資料請求などはこちら

問い合わせ(無料)

TEL: 03-3632-0455

お問い合わせ番号: 8376632783

お問い合わせ先:株式会社コムズ 本店

所在地 : 東京都墨田区両国4丁目37-13
TEL : 03-3632-0455
免許番号 : 東京都知事(4)第90683号
加盟団体 : 全国宅地建物取引業協会

この部屋を見学予約

ホームへ戻る